Profondo Rosso



posizione:

Monza


cliente:

Profondorosso S.r.l.


tipo di progetto:

Enoteca - ristorante


anno:

2007

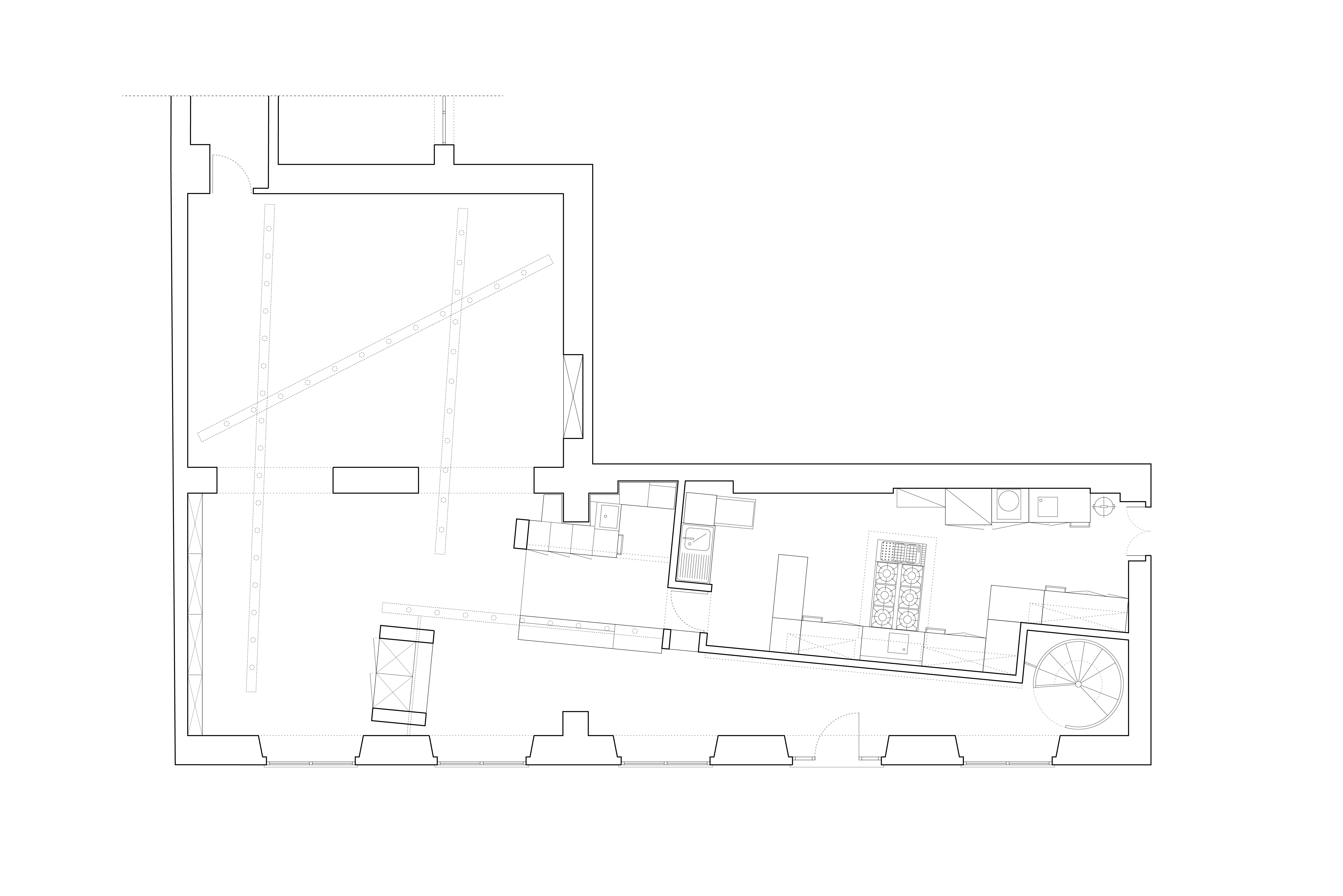
due assi inclinati creano le linee di costruzione di un sistema nel quale si organizzano la bottiglieria, la cucina , il bar, l'accoglienza. Nella sala le linee luminose giocano con questi assi inclinati amplificandone il movimento. Tutto è stato disegnato per essere prodotto e montato sul posto utilizzando materiali lasciati tutti al naturale

two inclined axes create the construction lines of a system in which the bottles shelves, the kitchen, the bar and the reception are organized. In the room, the luminous lines play with these inclined axes, amplifying their movement. Everything has been designed to be produced and assembled on site using materials left without finishings