︎

pasquali giaume
architetti associati

progetti
interni
allestimenti
paesaggio
prodotto
fotografia

studio
servizi
contatti
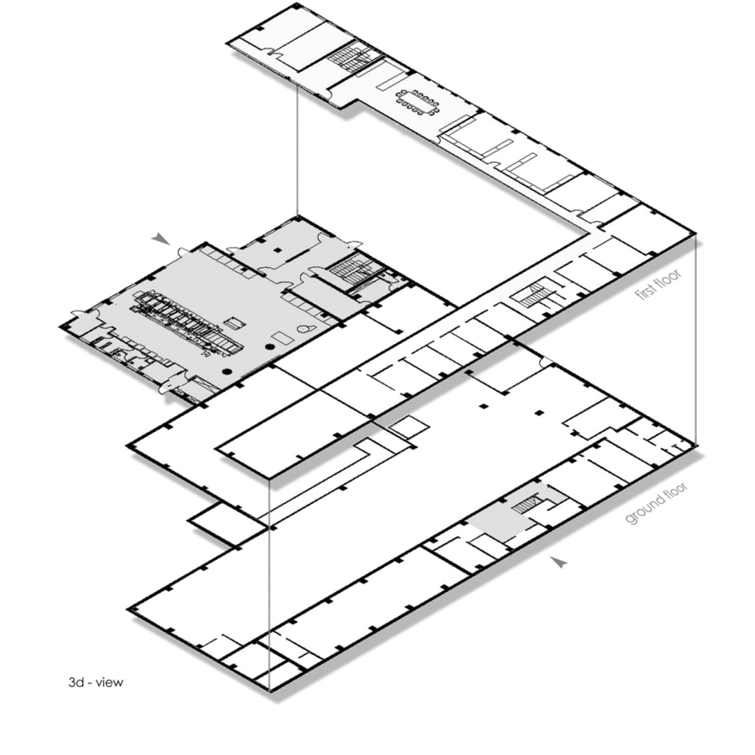
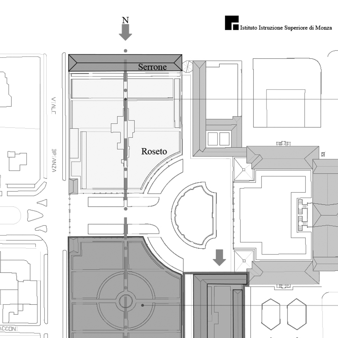
Nuova Scuola Primaria Locatelli a Biassono Capannoni e uffici NIGS Meda Tribune Meda Piscine Sottopasso FNM Meda Ampliamento Segraf Casa Moioli Palameda Via Giardini 7 Via Vittorio Emanuele II 13 Repower giardino Giardini via Ciardi Il Toscio Uffici Via Ciardi Uffici Eurotubi Europa Sasso Moro Newseum Coop Village RSA Vertova Casa Zappa Parco Lazzate Scuola Segrate Asilo Porta Garibaldi Scuola Capiago Arredo Urbano ISa ex Borsa Giussano Birone AssGraf Ex Cotonificio Cederna PR8 Radici&Radici Zappa Limbiate Casa Boniardi Acer