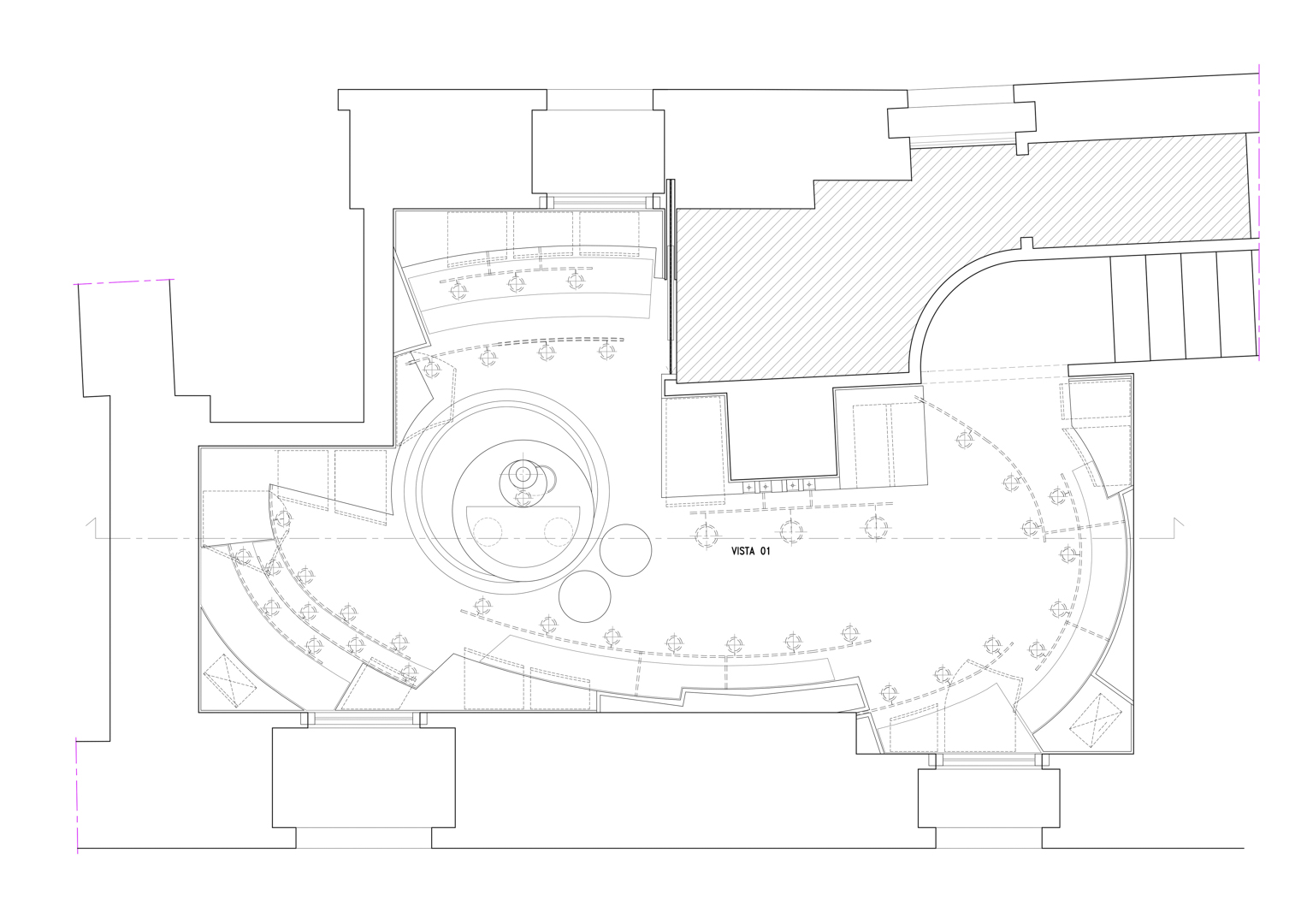
Biella gioielleria Piovano


posizione:

Biella


cliente:

Nobili Arredamenti S.p.a.


tipo di progetto:

Nuova gioielleria


anno:

1998

uno spazio in movimento a salire su forme ellittiche si sviluppa dal piano -1 all'ultimo livello. Il progetto è stato sviluppato per la divisione contract della Nobili Arredamenti S.p.a.

a space moving  up with elliptical forms develops from the -1 floor to the last level. The project was developed for the contract division of Nobili Arredamenti S.p.a.