︎
p
asquali giaume
architetti associati
progetti
interni
allestimenti
paesaggio
prodotto
fotografia
studio
servizi
contatti
AssGraf
posizione:
Settimo Milanese
cliente:
Assgraf S.r.l.
tipo di progetto:
Creazione area dimostrativa
anno:
2008
con:
Arch. Marta Comini
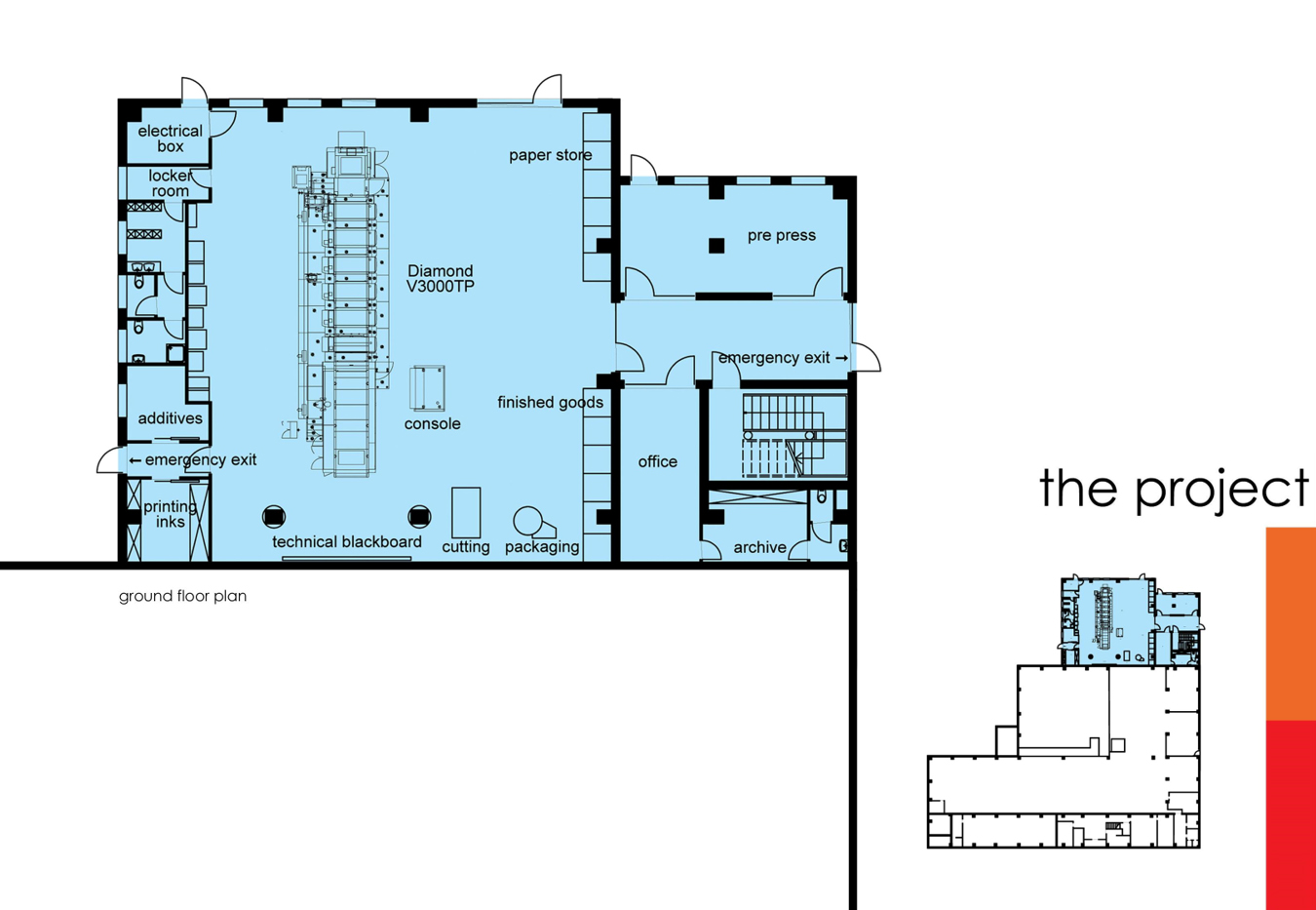
all'interno della azienda Assgraf viene creata una zona di presentazione e dimostrazione per innovative macchine da stampa.
a presentation and demonstration area for innovative printing machines is created within the Assgraf company.